Inspiration and contacts

The value of an apartment lies in thoughtful planning, not merely in a good location nor a beautiful view

02/2016

Aet Piel
Involved expert:
Aet Piel
The value of an apartment lies in thoughtful planning, not merely in a good location nor a beautiful view

New flats on sale are usually advertised for a great location, good architecture and a unique view. Interior architect Aet Piel said that it is quite usual that the plannings has been overlooked. Home buyers look for the number of rooms and overall square meters, not considering the use of space nor the placement of furniture.

Furniture arrangement should be put in place in the initial stages of house planning, collaboration with an architect and interior designer is crucial, for not only in private houses but also in apartments. This becomes especially important in small apartments, where every square meter really needs to be considered. Unfortunately it is very common that architect plans the space according to square meters. Interior architect on the other hand is the one who plans the use of space and placement of furniture functionally. Some, however, not all property development companies already realize the vital importance of interior design.




In kitchen solutions, the furniture placement is crucial, because it is not possible to plan without thinking through the kitchen appliances precise locations and logical paths. If you believe that the apartment’s interior design is solely up to home buyers vision, it is not always the case, because the apartment is normally quite a small space for living with ready‐made solutions made beforehand. Professional input from an interior designer provides the best and sometimes the only possible solution.

Modern open kitchen could have a counter or kitchen isle (the bigger the better). We should keep in mind that kitchen is a room for socializing, it is the heart of every home. Kitchen should not dominate the apartment, it’s charm should rather lie in it’s functionality, high‐quality materials and details. Kitchen decoration should blend in with colours and materials of the rest of apartment . Dark colours absorb the light in the kitchen, so dirt becomes more visible. Modern kitchen equipment, all the kitchen appliances and other furnishings ‐ lamps, chairs etc should be stylish. Kitchen is better not to be overloaded with excessive details. Often homeowners tend to do so because it is wrongly believed that integrated space, namely simple, minimalistic or monochrome kitchen is boring. In fact, the kitchen is part of the whole apartment and kitchen furniture should not be seen separately from rest of the apartement design.



In this particular home and kitchen the interior architect was able to step in already during the early design process. The changes led to a home made considerably more attractive.

Ground floor

First floor

The new materials in this kitchen are natural‐looking acrylic based or concrete‐like surfaces. Concrete, stone veneer panels, dried and weathered wood surfaces should rather belong to customized interiors rather than to private homes for their difficult day to day cleaning and maintenance.

The newest thing about kitchen appliances is the hob that has an integrated air purifier with activated carbon in the middle, which means it does not require separate direct ventilation around cooking area. Above the kitchen island, instead of the suspended air ventilator on eye level, there is an alternative fully integrated fume extractor within suspended ceiling, which does not take more than 20 cm of space behind suspended ceiling.

For sleek and streamlined look the handles of kitchen cabinet doors have been replaced with recessed channels on doors or with other invisible solutions.

When talking about the effective use of space, the planning process should avoid excessively large corridors, and invest instead in storage areas and walk‐in closets. One should rather favour spacious living room than large bedrooms. Utility room in an apartment is an imperative, and wherever it is possible, a washing machine should be in a separate room with the rest of the household goods. Bathroom vanity or dressing table in a bathroom is just as important as work surface in the kitchen, and if necessary, the washing machine can be placed underneath it. Separate sink is quite impractical.



It would be better to avoid building special plasterboard wall cabinets in children's rooms and bedrooms. In children's room one should prefer wardrobes or cabinets, which are not standard depth but rather thinner, still good for storing the clothing and all other necessary things. The usual 70 cm deep sliding door closet is not only boring but also massive and impractical for children. A very good apartment has a master bedroom connected with walk-in wardrobe closet and bathroom en suite.

In apartments, as well as in private homes one should rather emphasize the different materials than colours, accentuating with curtains, textiles and lighting fixtures. Exciting vibe can be created with different materials on the walls ‐ whether the choice is ceramic tiles, decking, veneer boards, brick, concrete, wallpaper or last but not least the plaster. Here, too, one should not emphasize the colours but rather the characteristics of different materials and structures.



Here are some tips and examples of how to manage with rather small changes and make one’s home much more attractive and functional.

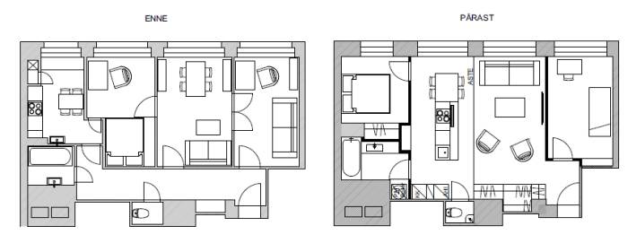
Given apartment was built in the 60's. The kitchen has been moved in the middle of the apartment and due to pipework it is now situated on a raised floor. A large kitchen island with a sink and stove and a spacious living room give this apartment completely different fresh look.
These changes normally are going to cost quite a lot, despite the fact that they are in a small scale, because the open plan conversion does not consider only the walls but one has also tackle the tiles in the hallway, reconnect the water pipes and tidy the floor after dismantling the wall.

A new property development transferred by small changes, made the living space significantly more functional and the kitchen much more attractive. Because the house was readily built before the changes, even the small reconstructions were, unfortunately, fairly expensive, because of re‐tiling, re‐connecting the pipes etc.

Here the interior architect was involved in the design process straight from the outset. To make the kitchen more attractive, a window overlooking to the patio was added. The kitchen opens to the living room and there is a large worktop for food preparation, which is connected to the dining table.

Thus, even though the idea of redecorating your home on your own often seems tempting, the specialist help would be highly advisable, in order to get things right at least in the most important matters like the standards, functionality, and visual impression. Anyone can take on furnishing and interior design in smaller scale and really enjoy it. Good planning will not only increase the value of the apartment but ultimately also saves money.


Fotodel: planeeringud ja sisekujundus Aet Piel Disain, fotograaf: Margot Laisaar
Autor: INkodu.ee, 2016
Keywords: interior architects, interior designers

The value of an apartment lies in thoughtful planning, not merely in a good location nor a beautiful view 1
Interior architects